Holstein Kremer (now Grotefeld Hoffmann)
The partners of Holstein Kremer came to AECIX with the desire to create a law office that would break from tradition in both structure and aesthetic, and there would be no law books on display. They required a space that not only supported their staff and work but exemplified their perspective that a law firm should be client centered, not self-promoting. The environment that was created features amenities that support this view both physically and emotionally.
The design process for this law office was evolutionary in many ways. The scope of the project changed numerous times along with the clients needs and desires. As Principal Designer for AECIX, I guided Linda Holstein and Anh Le Kremer through the exploration and discovery processes required to achieve a superior design for their future work environment. This process involved the evaluation of multiple locations and a multitude of layout options. In the end, the AECIX team helped the partners learn from themselves and their experience to select the best location and design an office that exemplified the HK brand for their clients.
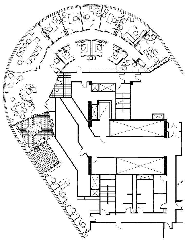
The reception area is the place of arrival where a custom reception desk is provided for the attendant. The round desk and lowered soffit delicately divide the two seating areas allowing use by potentially opposing parties. The grand view from the penthouse space is maintained largely through the curved glass façade of the main conference room. The curve helps maximize the view while creating the volume of the room around the beautiful Tuohy conference table. The shape of the table accentuates the room and the faux leather inlay, with detailed stitching, presents an elevated level of sophistication. The secondary media conference room is also adjacent to the reception area for client access and is backed by the “public” kitchen. This café space acts as a third less formal meeting space with a service bar, primary meeting table, and side counter for catered meals. One wall is designated for displaying firm credentials and awards. Clients and staff have use of a large monitor for broadcast viewing or case related content can be shared, like deposition recordings. The large size of the kitchen is achieved by using a portion of it as a corridor to access the private break room and secondary open office area. The shape of the space and change in flooring material help define public and private areas. The long curving interior wall houses closet, storage, and server spaces hidden behind louvered doors for ventilation and aesthetic.
The attorney offices, administrative staff area, and workroom are all located at one end of the space. A wall provides separation from the reception space to ensure privacy. The lighted wall and change in flooring material once again indicate the semi-private nature of that area. The adjacencies in this work area support efficient interaction and communication between staff. The workroom is hidden behind a portion of the long-curved wall that is present the length of the office. It is easily accessible by the staff while allowing the custom paralegal desks to stay neat and tidy.
AECIX helped Holstein Kremer achieve this desired break from traditional law office design through the use and aesthetic of the space. Linda and Anh wanted to provide an environment where their clients would feel more at ease and thus allow them to be completely attuned to their legal counsel. We even put the window treatments on the outside of the deposition room so their clients would not fiddle with the strings in their nervousness! The overall look and décor of the space was inspired by the Delano Hotel in Miami, a favorite of Anh Le Kremer who asked us to create a space that works perfectly as a law office, feels much more like a spa.
- Categories
- Office
- Location
- Minneapolis, MN: Fifth Street Towers
- Project Size
- 4,646 SF